The Belmont
At Tillman Place
Pricing from $452,990
THE BELMONT
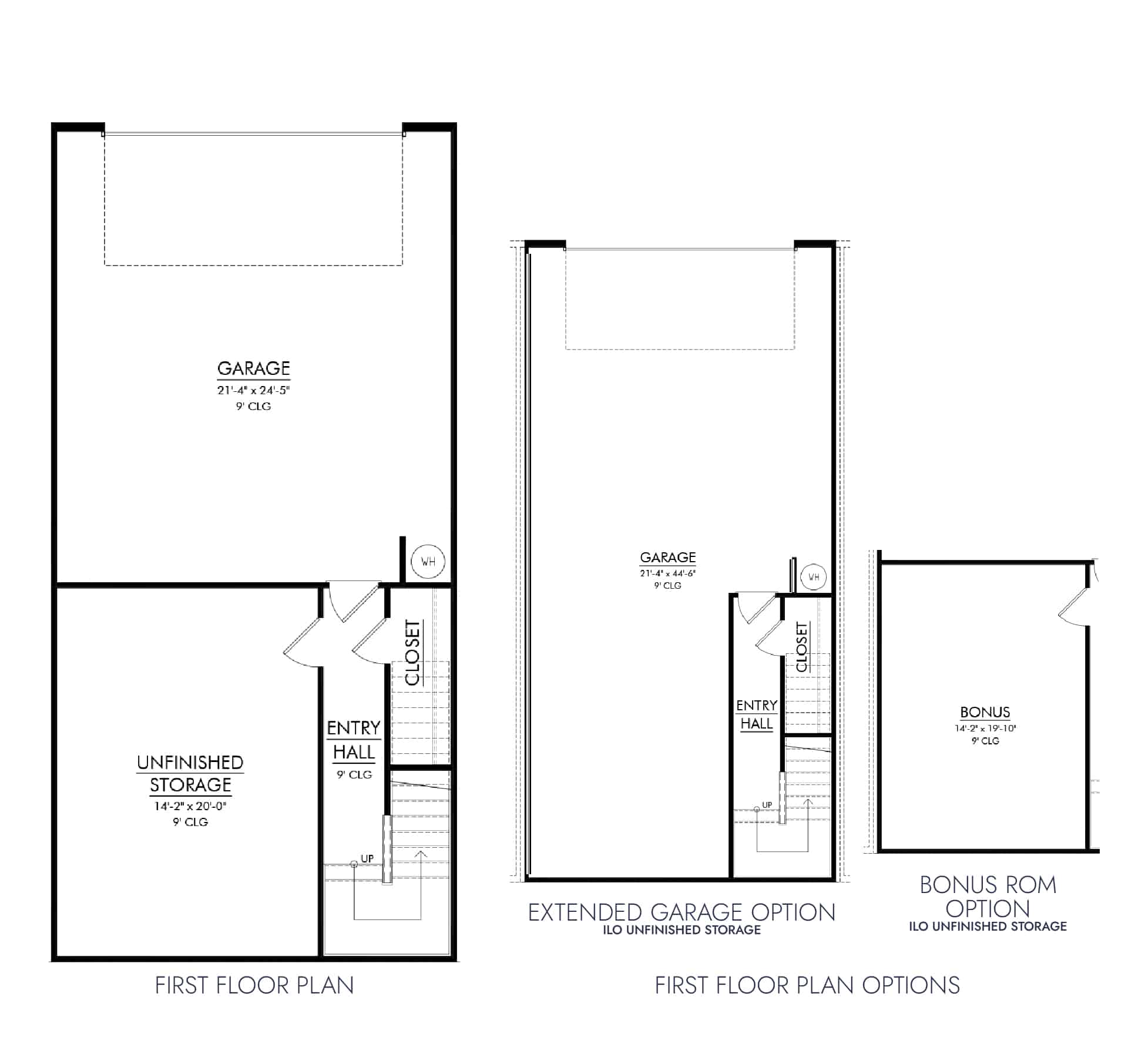
This Garage Low Townhome offers thoughtful, functional living across multiple levels. The first floor features a large unfinished storage room with an optional bonus room. On the second floor, the plan includes a dining room with an optional study, a spacious pantry, and a convenient passage from the kitchen to the dining room with the option for Butler’s pantry cabinets.
3 Bedrooms
2.5 Bathrooms
2,140 – 2,435 SQ FT
FEATURES
Designed for buyers who love cooking and entertaining, this home features a large pantry and dining area, with optional study space or butler’s pantry cabinetry, plus large unfinished storage with an optional bonus room.
Belmont Floor plan
TIlLMAN PLACE SALES CENTER
Sales Center
Hours
Fri – Sat 10AM – 5PM
Sunday 1PM – 5PM
And by appointment
*hours starting May 2nd
Sales Contact
Main Office: 615.472.1317
Email: info@buypatterson.com

