The Ashford
At Tillman Place
Pricing from the $460s
THE ASHFORD
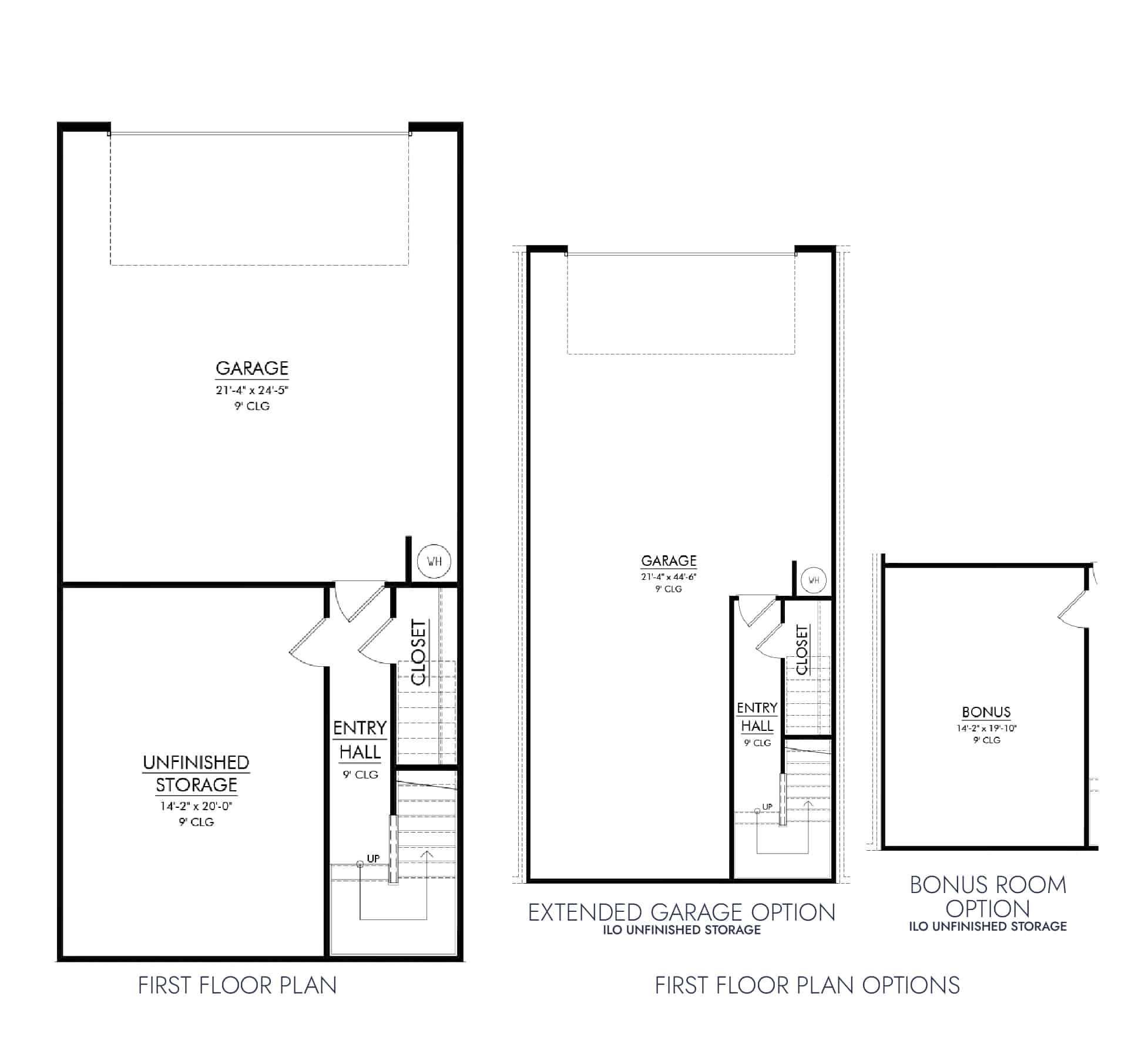
This Garage Low Townhome features a primary bedroom on the third floor and includes a 2-car garage with an optional extended garage. The first floor offers a large unfinished storage room with an optional bonus room. On the second floor, the living room may be configured as a flex room with French doors or converted into a fourth bedroom on the main living floor.
3-4 Bedrooms
2.5-3.5 Bathrooms
2,140 – 2,435 SQ FT
FEATURES
This model home plan includes a flexible second floor where the living room can convert to a flex room or bedroom, a large unfinished storage area with an optional bonus room, and an optional extended garage.
Ashford Floor plan
TIlLMAN PLACE SALES CENTER
Sales Center
Hours
Fri – Sat 10AM – 5PM
Sunday 1PM – 5PM
And by appointment
*hours starting May 2nd
Sales Contact
Christy McAfee | 615.504.6963 | Christy@BuyPatterson.com
Grant Burnett | 615.974.4261 | Grant.Burnett@Compass.com
Compass Main Office: 615.370.8669

